PROTOTYPE C | Expanding Missing Middle
Many of the housing types now associated with the “Missing Middle” were once a defining feature of pre-1960s neighborhoods widely regarded as stable, walkable, and desirable. Yet today, even modest departures from single-family-only zoning are often met with heightened concern over property values and neighborhood change. In this context, neighborhood-scaled multidwelling unit [MDU] housing offers a necessary reframing—one that emphasizes compatible physical scale, and architectural continuity rather than density alone. For existing urban and urbanizing neighborhoods, such housing is not an imposition, but an essential tool for sustaining affordability, demographic diversity, and long-term neighborhood vitality.
Prototype C is conceived as a direct response to this challenge. The prototype advances a neighborhood-scaled MDU model that leverages prevalent zoning and building codes to deliver family-sized units, meaningful outdoor space, and efficient construction economics within a neighborhood residential scale. By combining courtyard living, walk-up circulation, and a deliberate mix of flats, duplexes, and triplexes, Prototype C demonstrates how MDU housing can be introduced in a manner that aligns with neighborhood character while meaningfully expanding housing choice in urban and urbanizing contexts.

Concept
Prototype C is an adaptable, medium-density, MDU housing model designed to leverage widely adopted zoning and building code frameworks to streamline approvals, improve planning efficiency, and expand access to family-sized rental housing. The prototype emphasizes courtyard living, abundant community and private outdoor access, and a mix of unit types more commonly associated with townhouse development—while achieving densities and efficiencies that work to provide affordability in desirable locations where SF options have become unattainable for middle income segments of the market.
The system is optimized to reduce construction and operational costs, increase affordability, and improve long-term asset performance, making it well-suited for public-private partnerships, workforce housing, and mixed-income developments.
Planning and Building Logic
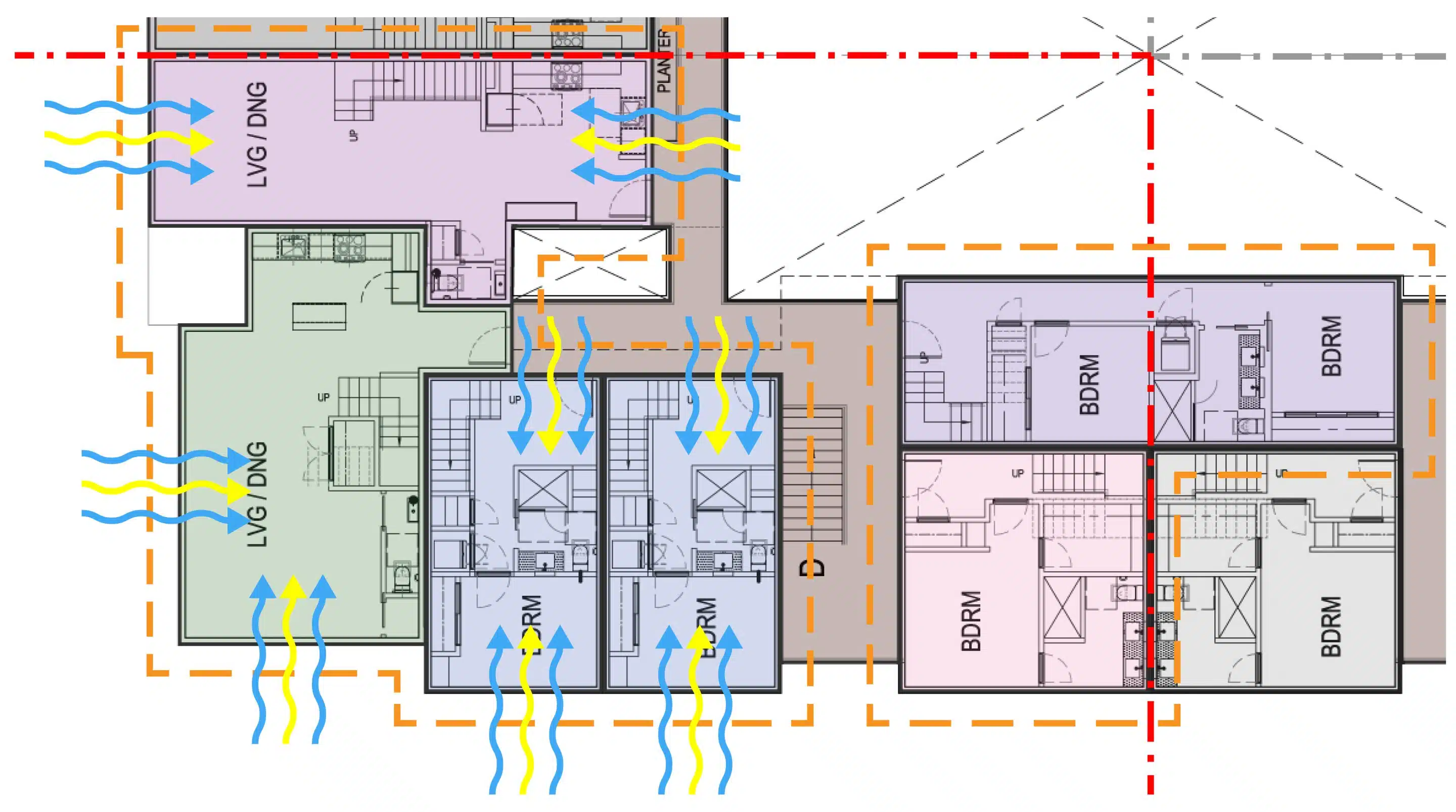
Prototype C is organized around a simple and repeatable structural strategy:
-
Concrete parking structure at grade, topped by
-
Four levels of Type III wood-frame construction, with
-
A shared central residential courtyard occupying the parking podium roof.
This configuration enables efficient land use while maintaining a residential scale and strong indoor–outdoor relationships for all units. The courtyard is activated by:
-
Duplex units with primary entries at grade and secondary entries a the courtyard level, with living, dining, and kitchen spaces located on the upper level.
-
A perimeter of 1- and 2-bedroom flats providing direct access to shared outdoor space.
Upper levels are served by four communal two-flight stair cores, providing access to:
-
2- and 3-bedroom duplex and triplex units
-
Two 3-bedroom duplex units
By relying on walk-up circulation and internal unit stairs, the prototype meets National Building Code regulations for Type III construction without the need for an elevator—allowing greater planning flexibility, improved net-to-gross efficiency, and increased unit sizes without increasing building height or complexity.

Unit Mix and Market Rationale
Housing affordability challenges span a broad segment of the rental market—from recent graduates and young families to downsizing households. While overall unit shortages remain acute, a critical and often under-supplied segment is family-sized rental housing.
Current national trends indicate:
-
Studios and 1-bedroom units: ~45–50% of market share
-
2-bedroom units: ~25–30%
-
3-bedroom units: ~10–15%
-
Up to 50% of existing 2- and 3-bedroom units are located in buildings more than 20 years old
Prototype C directly addresses this imbalance by prioritizing 2- and 3-bedroom units within a multifamily framework, delivering larger, flexible units at a scale and level of detail typically associated with townhouse living—without the land consumption or cost premiums of low-density development.
Unit Typologies
The prototype’s performance is driven by a strategic mix of Flats, Duplexes, and Triplexes, configured to optimize code compliance, construction efficiency, and livability:
-
Flats: 1- and 2-bedroom units at the courtyard level
-
Duplexes: Ground-adjacent and upper-level family units
-
Triplexes: Predominantly 2- and 3-bedroom units accessed via communal stairs
All units are designed to maximize daylight, cross-ventilation, and access to private and shared outdoor space.

Key Performance Metrics
-
Density: 54 DU / AC for ‘Intown Suburban’ sites; 83 DU / AC for ‘Urban’ sites
-
FAR: Up to 2.0
-
Unit Mix: Studio, 1-, 2-, and 3-bedroom units
-
Unit Sizes: Approx. 640–1,775 SF
-
Light & Ventilation: Minimum two exposures for all units
-
Outdoor Space:
-
Private outdoor space for all units
-
Central shared courtyard for all residents
-
-
Parking Ratio: Approx. 1.0 space per unit
-
Construction Type: Type III wood frame with ancillary concrete parking structure
-
Circulation: Two-flight communal stairs; no elevator required in lieu of multi-story upper units with internal stairs and no [vertical] accessibility requirements.
-
Adaptability: Repeatable plans with flexible aesthetic and façade strategies


Conclusion
The strength of Prototype C lies in its deliberate alignment of unit mix, building code strategy, and construction logic to deliver family-oriented MDU housing that is both economically viable and highly livable. By combining the efficiencies of multifamily development with the spatial qualities of townhouse living, the prototype offers a scalable solution to one of the most persistent gaps in today’s housing market.




